
Котел КВр 0.75 твердотопливный в Казахстане
Цена 635 000 рублей с НДС
Модель с ручной колосниковой топкой
Подходит для размещения в маленьких котельных
Работает с вентилятором и дымососом
Дутье и тяга регулируются шиберами, поставляются в комплекте с котлом
Надежная работа котла обеспечивается изготовлением трубной системы из трубы сталь 10 повышенной прочности
Отапливаемая площадь помещения от 5800 до 8300 м2, отапливаемый объем от 17100 до 24600 м3.
Температура 95, 115 градусов.
Марка котла | Котел КВр, Котел малой мощности | Гидравлическое сопротивление при перепаде t, МПа (кгс/cм²) | Не более 0.07 (0.7) |
---|---|---|---|
Вид топки | Колосники | Габаритные размеры котельного блока, длина*ширина*высота, мм | 2400х1600х2150 |
Максимальная тепловая мощность, кВт | 750 | Масса, кг | 2300 |
Максимальная тепловая мощность, МВт | 0.75 | Тип котла | Водогрейный, Промышленный |
Максимальная тепловая мощность, Гкал | 0.64 | Температура воды, °C | 70-95, 90-115 |
КПД (УГОЛЬ), не менее, % | 82 | Тип отопительного котла | Твердотопливный |
Аэродинамическое сопротивление, Па (мм. вод. ст.) | 190 | Бренд | HeatExpert |
Температура уходящих газов, °C | 250 | Количество контуров | Одноконтурный |
Расход топлива при максимальной нагрузке котла (УГОЛЬ), кг/ч | 151 | Размещение | Напольный |
Расход теплоносителя среды, м³/ч | 26 | Тип камеры сгорания | Открытый |
Расход топлива среднечасовой за отопительный сезон, кг/ч | 86.3 | Управление | Электронное |
Расход условного топлива, кг/ч | 113 | Принцип работы твердотопливного котла | Классический |
Отапливаемая площадь, м² | 5800-8300 | Энергонезависимый | нет |
Отапливаемый объем, м³ | 17100-24600 | Тип питания | Трехфазное |
Топливо | Уголь, Твердотопливный | Встроенный циркуляционный насос | нет |
Тяга | Уравновешенная | Встроенный расширительный бак | нет |
Низшая теплота сгорания топлива УГОЛЬ, кКал/кг | 5230 | Энергоэффективность | Высокая |
Давление рабочей среды, МПа (кгс/cм²) | 0.3-0.6 |
Это устройство работает со вспомогательным оборудованием, которое приобретается отдельно. Если вы хотите сразу узнать стоимость всей установки, добавьте заинтересовавшие вас позиции в корзину. Чтобы точно расчитать стоимость доставки до вашего объекта, укажите его адрес в корзине и оправьте нам заявку. Обычно мы отвечаем в течение дня.


Котел КВр 0.75 К
Шибер газохода котла КВр 0.75 МВт
Колосниковая топка котла КВр 0.75
Обмуровка котла КВр 0.75 МВт
Изготовление котла КВр 0.75 МВт
Конструкция котла КВр 0.75 МВт
Производство котла КВр 0.75 МВт
Водогрейный котел КВр 0 75 с колосниками
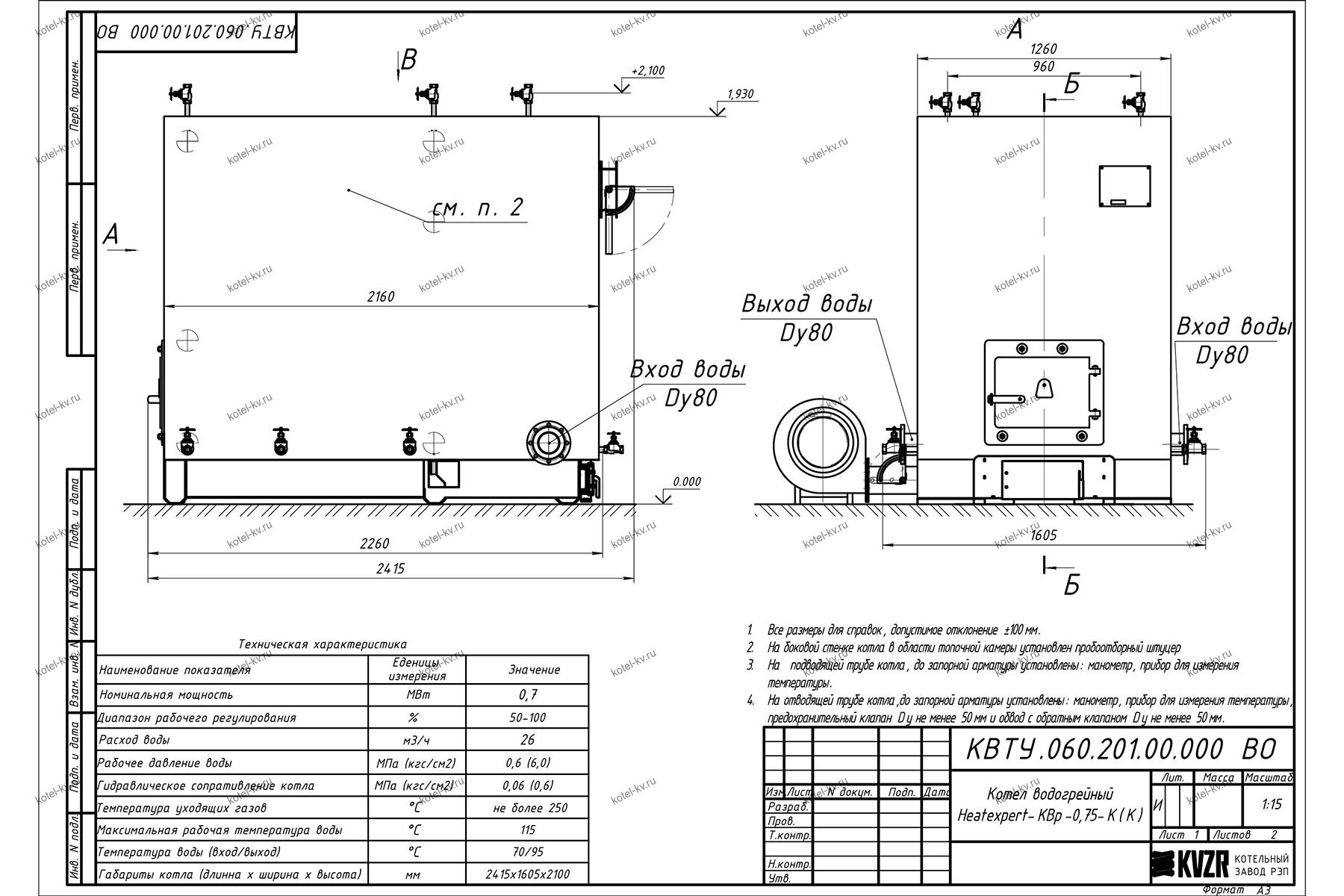
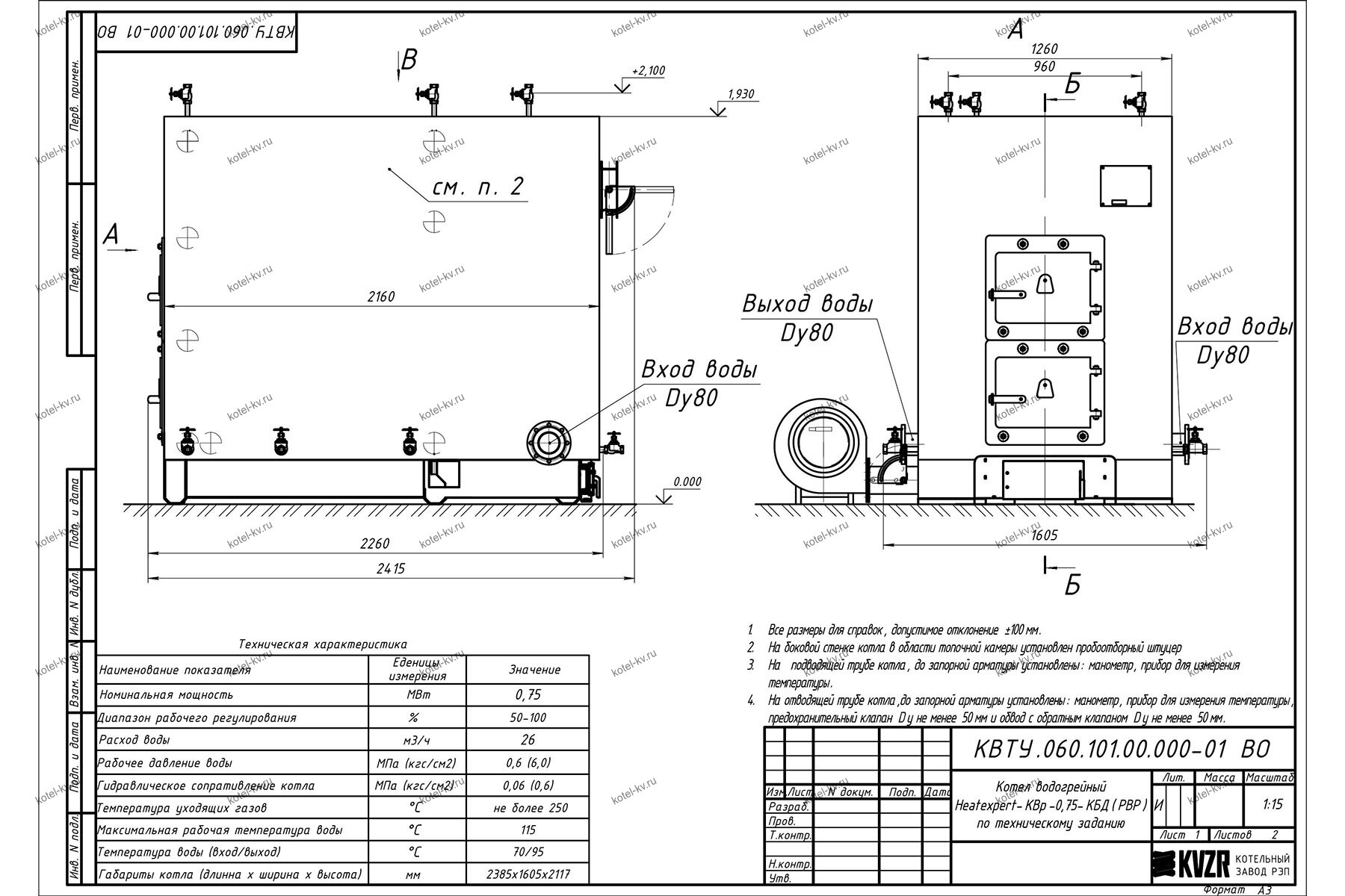
Технические характеристики котла КВр 0.75 К
- мощность 750 КВт, 0,75 МВт, 0,64 ГКал;
- температура 95 / 115 градусов
- топливо – каменный и бурый уголь;
- давление не более 0,6 МПа;
- КПД до 82 %;
- отапливаемая площадь помещения от 5800 до 8300 м кв;
- отапливаемый объем от 17100 до 24600 м3 (в зависимости максимальной температуры в регионе эксплуатации). Проверить или подобрать мощность котла в Казахстане вы можете по ссылке.
- устанавливается в котельных административных, производственных зданий и отопительных котельных ЖКХ.
Описание и устройство котла КВр-0.75 на твердом топливе
Котел водогрейный КВр 0 75 твердотопливный стальной с колосниками изготавливается из труб диаметром 57 толщиной стенки 3- 3,5 мм сталь 10, трубная часть выполнена напольной, вертикальной и моноблочной. Каркас под обмуровку изготавливается из профильной трубы, уголка и швеллера. Тепловая изоляция состоит из плиты ПТЭ. Наружная обшивка котла выполнена из полимерного оцинкованного листа. Для очистки конвективных секций в обмуровке устроены съёмные люки.
Отопительный котел КВр 0.75 на угле имеет гидравлическую схему, обеспечивающую быстрый нагрев воды и выход на требуемую мощность, кроме того высокие скорости теплоносителя позволяют назвать данную серию безнакипные. Локальные перегревы отдельных зон поверхностей нагрева исключаются точностью производимых расчетов гидравлики. Дренажи и воздушники производят дренирование трубной системы от шлама и удаление скапливающего воздуха.
Принцип работы водогрейного котла КВр-0.75 К
Твердое топливо сгорает в топке. Горячие газы омывают водяную трубную систему и нагревают воду до 115 °С.
Циркуляция воды в котельном агрегате производится циркуляционным насосом. Для восполнения теплоносителя, теряемого при дренировании и в теплосети, производится подпитка подпиточным насосом.
Для горения топлива вентилятором в короб подается воздух, через отверстия в колосниках воздух поступает в топку. В отверстия ссыпается образующиеся зола и шлак. Горячие дымовые газы проходят трубную систему котельного блока и поступают в газоходы котельной. В газоходах может устанавливаться золоуловитель ЗУ-0.8. Для преодоления сопротивления газоходов и золоуловителя перед дымовой трубой монтируется дымосос Д 3,5. Далее газы через дымовую трубу поступают в атмосферу. Производительность котла регулируется путем изменения количества и расхода подаваемого в топку каменного и бурого угля.
Водогрейный котел твердотопливный КВр-0.75 Б должен быть укомплектован автоматикой. Заводская автоматика ограничивает предельно допустимые параметры работы, температуру и давление воды, минимальный расход теплоносителя, поддерживает минимально допустимое разряжение.
Водно-химический режим водогрейного котла должен быть организован в соответствии с требованиями руководства по эксплуатации и нормативной литературы по тепловым энергоустановкам и тепловым сетям. Для подбора водоподготовительной установки требуется провести химический анализ воды.
Схема подключения котла КВр 0 75 в котельной
Подключение и монтаж водогрейного отопительного котла КВр-0.75 К в Казахстане производятся по проекту.
На рисунке приведен один из вариантов схемы подключения и обвязки твердотопливного котла КВр-0 75 К в отопительной котельной.
Все котельно-вспомогательное оборудование для подключения угольного котла КВр 0.75 К в Казахстане вы можете купить на нашем котельном заводе, базовая комплектация входящая в стоимость включает в себя вентилятор, чугунные колосники, клапаны предохранительные, КИП и запорную арматуру в пределах блока. Также наш завод оказывает услуги по проектированию, монтажу, шеф монтажу и пуско-наладке котельных.
Безопасность котла
- Безопасная эксплуатация котла обеспечивается выполнением требований:
- Инструкции по эксплуатации
- Правил устройства и безопасной эксплуатации водогрейных котлов с температурой нагрева воды не выше 115 °С
- Правил технической эксплуатации тепловых энергоустановок
Требования к помещениям котельной регламентируются СП 89.13330.2016 «Котельные установки».
Водогрейный котел КВр-0.75 КБ на твердом топливе с колосниками должен управляться автоматикой безопасности, имеющей сертификат соответствия.
Одним из самых важных устройств, обеспечивающих безопасную эксплуатацию водогрейного котла, является предохранительный клапан. Расчет пропускной способности для каждой мощности приведен в паспорте котла.
Гарантии изготовителя
Завод производитель в г Казахстан в процессе производства и технического контроля подвергает промышленный КВр-0,75 К с колосниками гидравлическому испытанию давлением 0,9 МПа (9 кгс/см2).
Гарантийное обслуживание включает в себя бесплатное устранение скрытых заводских дефектов, замену деталей и узлов вышедших из строя в период гарантийного срока при условии монтажа и эксплуатации оборудования Покупателем в соответствии с его назначением, паспортом, технической документацией, техническими нормами, правилами ввода в эксплуатацию и эксплуатации данного оборудования.
Срок эксплуатации котла КВр 10 лет.
Промышленный котел с ручным забросом топлива у различных производителей может иметь серии и марки - котел КВ-0.75 К, котел КВр-0.75 КБ, котел КВр-0.75-95 КБ, котел КВр-0.75-115 К.
Сертификат соответствия для котла мощностью 0.75 МВт и температурой 115 градусов имеет соответствие техническим регламентам ТР ТС 010, ТР ТС 032.
Водогрейный котел КВр 0 75 МВт всегда есть в наличии на складе завода производителя, действующая цена указана на сайте, стоимость установок по техническому заданию заказчика рассчитывается под заказ. Возможные варианты изменения устройства модели - корректировка габаритных размеров, изменение места подвода и выхода теплоносителя, изменение размеров и расположения загрузочного окна и подобное. Производство отопительных котлов мощностью 0.75 МВт по техническому заданию завод осуществляет в течении 10-20 рабочих дней.
Купить Котел КВр 0.75 твердотопливный в Казахстане
Промышленный водогрейный котел КВр-0 75 К ( - мощность 0,75 МВт; - твердое топливо уголь; - температура 115 градусов; - отапливаемая площадь* от 5800 до 8300 м2; - отапливаемый объем* от 17100 до 24600 м3 (* диапазон для самого холодного и самого теплого региона РФ)); - применение для отопления производства, жилых зданий, цехов, складов, промышленных предприятий, теплиц, гаражей, больниц, школ, садов, для монтажа в блочно модульных котельных.
Предлагаем вам подобрать мощность водогрейного промышленного котла по отапливаемой площади и объему, с учетом типа строения и данных о температуре в регионе и в Казахстане, вида топлива.
Выбор водогрейного котла для котельной производится по каталогу отопительного оборудования нашего Котельного завода с помощью калькулятора подбора мощности. Водогрейные котлы отопления для промышленных предприятий предлагается выбрать из модельного ряда газовых, дизельных, мазутных, твердотопливных угольных и дровяных котлов, с ручными и автоматическими топками мощностью от 150 кВ до 4 МВт, и температурой нагрева теплоносителя до 115 градусов.
Подбор мощности водогрейного промышленного котла для отопления учитывает:
- температуру в самую холодную пятидневку в отопительный сезон. Для каждого региона РФ температура различна, данные берутся из СП 131.13330 «Строительная климатология»;
- тепло, необходимое для возмещения потерь тепла через ограждения, окна, двери здания и тепловые потери через не плотности строения и открываемые двери;
- температуру воздуха внутри помещений. Для различных типов и назначений строений она существенно отличается:
Тип отапливаемого строения | Температура внутри помещения |
---|---|
Жилые строения и административные здания | + 20 С° |
Больницы, детские сады | + 22 С° |
Учебные заведения, предприятия общепита, учреждения культуры, школы | + 16 С° |
Магазины и депо | + 15 С° |
Кинотеатры | + 14 С° |
Гаражи | + 10 С° |
Бани | + 25 С° |
- объем строения. Для определения наружного объема строения площадь по наружным стенкам строения на уровне первого этажа перемножается на высоту. Для панельных домов высота определяется: от уровня пола (нулевой отметки) до верхней плоскости теплоизоляционного слоя чердачного покрытия. Для остальных зданий высота определяется от уровня земли. Подбор мощности для отопления различных по назначению строений считается отдельно. Все полученные значения мощности складываются.
Подбор мощности водогрейного промышленного котла производится для общей суммарной мощности каждого отдельно стоящего задания.
Если вам требуется подобрать мощность котла в Казахстане для котельной с учетом вентиляции здания, горячего водоснабжения объекта, потерь в теплотрассе - необходимо производить более подробный расчет. Данный расчет мы можем произвести для вас бесплатно. Отправьте опросный лист и заявку на электронный адрес sale@kotel-kv.ru или позвоните по телефону 8 (800) 551-70-98.